70 mq
1
1
Arredato
Autonomo

Descrizione

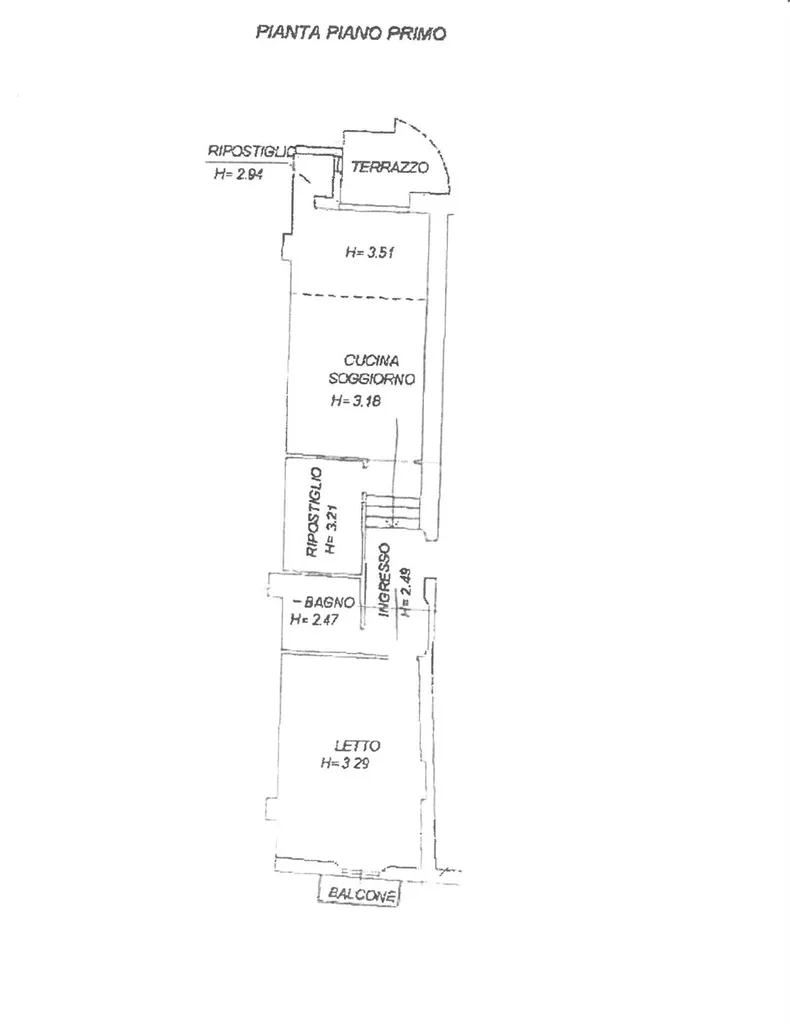
Rif. 4499 - ZONA CENTRO, proponiamo in affitto un ampio e luminosissimo bilocale affacciato sul Corso Mazzini, si trova al primo piano di una palazzina curata e tranquilla. Composto da: ingresso, soggiorno con angolo cottura, ripostiglio, balcone affacciato nella corte interna, bagno, stanza jolly (utilizzabile anche come seconda cameretta), bagno, ampia camera con balcone affacciata sul Corso. Il tutto disponibile da subito. SI RICHIEDE FIDEIUSSIONE BANCARIA. Il proprietario richiede: - 3 mensilità di cauzione; - mensilità entrante; Spese mediazione agenzia immobiliare a parte. APE in cat. G, Euro 800 mensili, RIF. 4499. Classe Energetica: E

Altre caratteristiche

Vani
4
Tipo di cucina
Abitabile
Piano
1
Piani totali della palazzina
2
Spese condominiali
€ 10 €/mese
Tipologia Immobile
Appartamento
Categoria Immobile
Case e Appartamenti
Contatta Agenzia
Proposto da: KAPITAL IMMOBILIARE