2

Descrizione

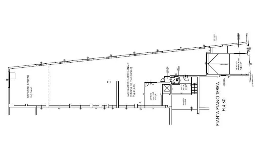
Rif. CNT061 - Porta Schiavonia - Locale Magazzino di c/a 300 m. Accesso carrabile portone sezionale nuovo altezza 4 m. Zona ufficio separata - spogliatoio - bagno. Androne carico/scarico coperto. Open space, pavimento industriale (precedentemente utilizzato come autorimessa). Richieste referenze e fideiussione bancaria. Per informazioni e visite chiamate lo 3204730471 info@forlicase.it. Visitate il nostro sito www.agenziacentro.com oppure venite a trovarci nel nostro ufficio Forlì Viale Italia 10/103. Classe Energetica: in fase di ottenimento

Altre caratteristiche

Categoria Immobile
Commerciali e Attività
Tipologia Immobile
Laboratorio / Magazzino
Metri Quadri
350 mq
Classe energetica
G
Posto auto
Presente
Piano
Terra
Bagni
1
Stato Immobile
In buone condizioni
Contatta Agenzia
Proposto da: AGENZIA CENTRO