65 mq
2
1
Autonomo
In attesa di certificazione

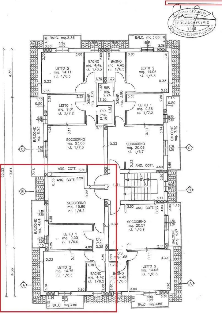
Descrizione

Trilocale luminoso con garage e due terrazzi, ingresso su sala cucina con finestra doppia anta esposta ad EST molto luminosa con accesso al balcone, camera matrimoniale con porta finestra di accesso al secondo balcone dotato di tenda a cupola, camera singola, bagno finestrato. Spazi accoglienti e funzionali, ideale per chi cerca praticità. Bassi consumi energetici. Ampio cortile condominiale comodo per far giocare i bambini o piccoli animali domestici. Dotato di climatizzatore per zona giorno e uno per la zona notte. Impianti completamente autonomi. Libero da subito. No Agenzie Immobiliari.

Planimetrie

Altre caratteristiche

Stato Immobile
In buone condizioni
Anno costruzione
2007
Vani
3
Tipo di cucina
Aperta
Balconi
2
Metratura totale balconi
8
Dettaglio garage
Singolo
Piano
2
Piani totali della palazzina
2
Ultimo piano
Condizionamento
Installato
Spese condominiali
€ 76
Stato al rogito
Libero
Tipologia Immobile
Appartamento
Categoria Immobile
Case e Appartamenti
Contatta Inserzionista
Rif. Immobile:
Proposto da: Andreina Etzi

Quotazioni immobiliari per via Ravegnana 238 - Foro Boario - Forlì