4

Descrizione

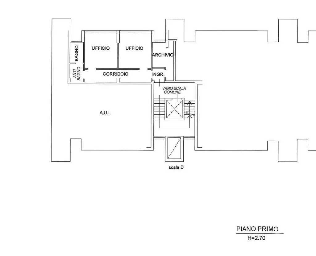
Rif. 4512 - ZONA STADIO, proponiamo un ufficio con possibilità di trasformazione ad appartamento, risulta in ottime condizioni ed è situato al primo piano di una palazzina dotata di ascensore e ben curata, l'ufficio è composto da un ingresso con archivio, due uffici ampi di 14 mq l'uno e un bagno finestrato, l'ufficio affaccia sul viale Roma. APE in definizione, Euro 110.000, RIF 4512. Classe Energetica: G

Altre caratteristiche

Categoria Immobile
Commerciali e Attività
Tipologia Immobile
Ufficio / Studio
Spese condominiali
€ 65 €/mese
Metri Quadri
61 mq
Riscaldamento
Autonomo
Piani totali della palazzina
4
Piano
1
Bagni
1
Stato Immobile
In ottime condizioni
Contatta Agenzia
Proposto da: KAPITAL IMMOBILIARE

Quotazioni immobiliari per Forlì