146 mq
3
2
Garage/Posto Auto
Giardino privato

Descrizione

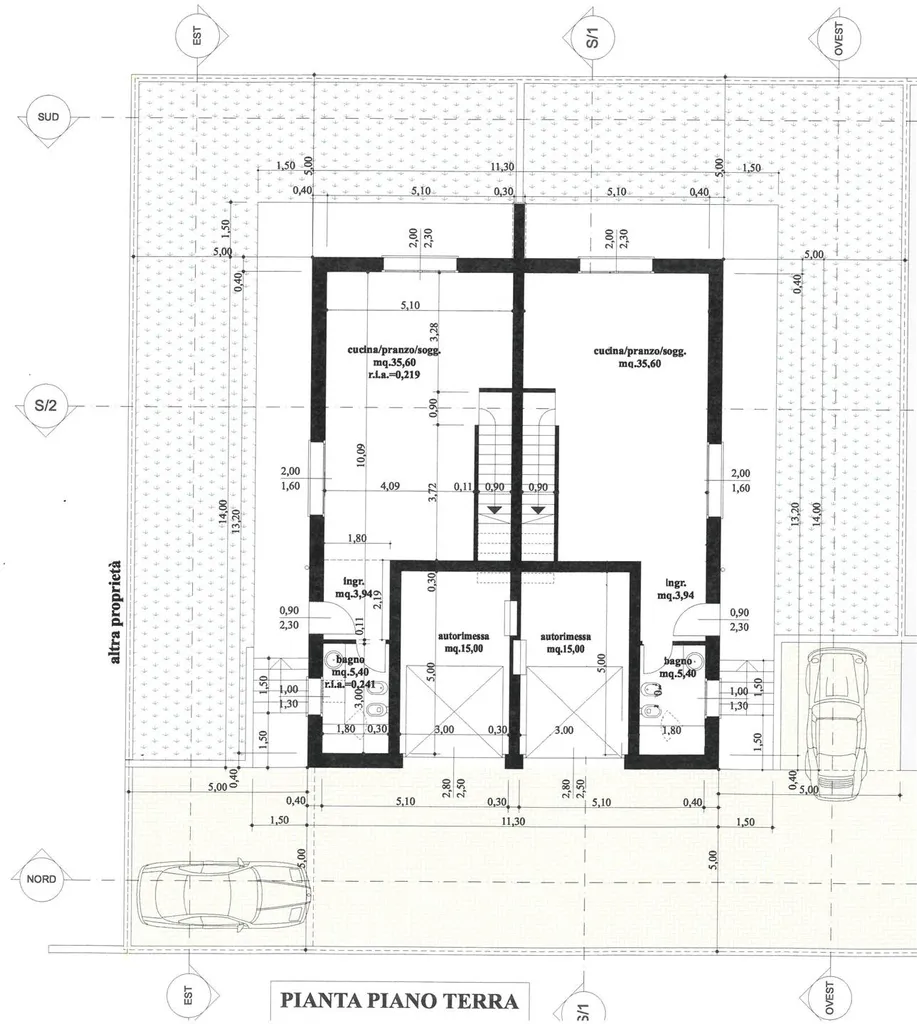
Rif. 4330 - MELDOLA, proponiamo villetta abbinata ad un lato in un contesto che sta nascendo ora, rappresenta l'incontro perfetto tra innovazione, eleganza e comfort di una casa in classe A4, l'abitazione è studiata nei minimi dettagli. Al piano terra offre una zona giorno si apre su un living accogliente con cucina a vista, affacciato sul giardino privato oltre al garage. Al primo piano, troviamo la zona notte è composta da 3 ampie camere da letto, ripostiglio e due bagni. La costruzione sarà dotata di tutte le tecnologie più avanzate, pannelli solari e impianto fotovoltaico, riscaldamento a pavimento. Rif. 4330. Eu. 430.000 Classe Energetica: A4

Altre caratteristiche

Stato Immobile
Nuovo
Vani
4
Metratura giardino
122
Piani totali della palazzina
1
Condizionamento
Installato
Tipologia Immobile
Villetta a schiera
Categoria Immobile
Case e Appartamenti
Contatta Agenzia
Proposto da: KAPITAL IMMOBILIARE

Quotazioni immobiliari per Meldola